当前位置: 首页 > 产品动态
不懂震,就是不懂涡街!
发布时间:2021-02-26 15:22:19
作者:杭州美控自动化技术有限公司
网站来源:www.meaconchina.cn

  
  导读
  涡街是常用的流量测量仪表,不过也确实是故障售后问题最多的一类流量仪表。为什么会有那么多的问题涡街?很重要的一大原因,就是震动的原因。说到震动,你可不要单纯的认为现场管道震动,还包括因为产品质量原因,而导致产生震动影响。
  


  涡街的原理
  那么先给大家介绍下涡街的原理。在特定的流动条件下,一部分流体动能转化为流体振动,其振动频率与流速(流量)有确定的比例关系,依据这种原理工作的流量计称为流体振动流量计,涡街流量计就是里面的一种,其他的还有。所以说不懂震就是不懂涡街。
  

  涡街流量计是根据卡门(Karman)涡街原理研究生产的,主要用于工业管道介质流体的流量测量,如气体、液体、蒸汽等多种介质涡街流量计是应用流体振荡原理来测量流量的,流体在管道中经过涡街流量变送器时,在三角柱的旋涡发生体后上下交替产生正比于流速的两列旋涡,旋涡的释放频率与流过旋涡发生体的流体平均速度及旋涡发生体特征宽度有关。
  原理详解
  当一稳定的流体流经有一定长度的直管道时,撞击沉浸在流体中的非线性柱体,在流体的下游会产生漩涡(即卡门漩涡)。当流体的雷诺数(Re)在一定的范围内,漩涡的发生规律是稳定可靠的,漩涡发生的频率F由公式:F=(St?*?V)/d?确定
  其中,V为流速;?d为柱体迎流面的宽度;St为斯特罗哈数。
  

  斯特罗哈数是一个无因次参数,下图表示斯特罗哈数与雷诺数的关系,在一定的雷诺数范围内,斯特罗哈数基本上保持不变,这样就可以认为雷诺数在这个范围内卡门漩涡的释放频率与流体的速度成正比。所以由检测出来的频率F就可求得流速V,并由V求得体积流量。

  

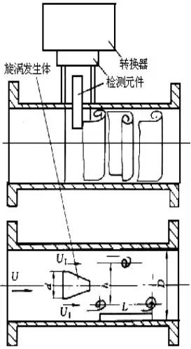
  涡街流量计传感器和转换器两部分组成,如图所示。传感器包括旋涡发生体(阻流体)、检测元件、仪表表体等;转换器包括前置放大器、滤波整形电路、D/A转换电路、输出接口电路、端子、支架和防护罩等。近年来智能式流量计还把微处理器、显示通讯及其他功能模块亦装在转换器内。

  

 

  那么重点来了,震动既然对涡街流量计有影响,现场震动多吗?那么现在是有哪些解决方案可以解决震动问题吗?
  小编很肯定的告诉你,现场震动还是很多的,那么买涡街流量计的时候要注意哪些?答案是:
  买重一点的流量计
  
  纳尼!你在逗我!重一点!
  这小编说话都是有事实依据的,其实很简单,重量重一点的不容易震动,像横河(Yokogawa)的流量计就是国内同口径的重量的3倍左右。就像胖子不容易被风吹跑,质量越大的物体,惯性也越大,抗震动性能也越好。
  有没有瞬间觉得,胖子的春天来了!

  

 

  哈哈,开玩笑的,解密最终答案:
  其实可以在买的时候拍一拍涡街流量计,如果用力拍的时候没有信号产生,说明流量计对于抗震效果还是很不错的呢。这个小技巧我只告诉你们哦。
  最坏的消息就是小编是个瘦纸!心疼自己三秒!
  那么,作为一个瘦纸,既然只能抗住7.5级台风,还是容易出现震动的情况,现场该怎么解决?下面小编给大家提供三种常见的意见:
  1
  将流量计两边用支架撑起来,减少震动(类似树木这种)

  

 

  2
  进行小信号切除,把那些干扰的虚假小信号切掉 

郑州贝锐达测控技术有限公司服务热线:18516526699豫ICP备2025121417号-1